Leave a Message

Thank you for your message. We will be in touch with you shortly.

Explore Our Properties

Property Description

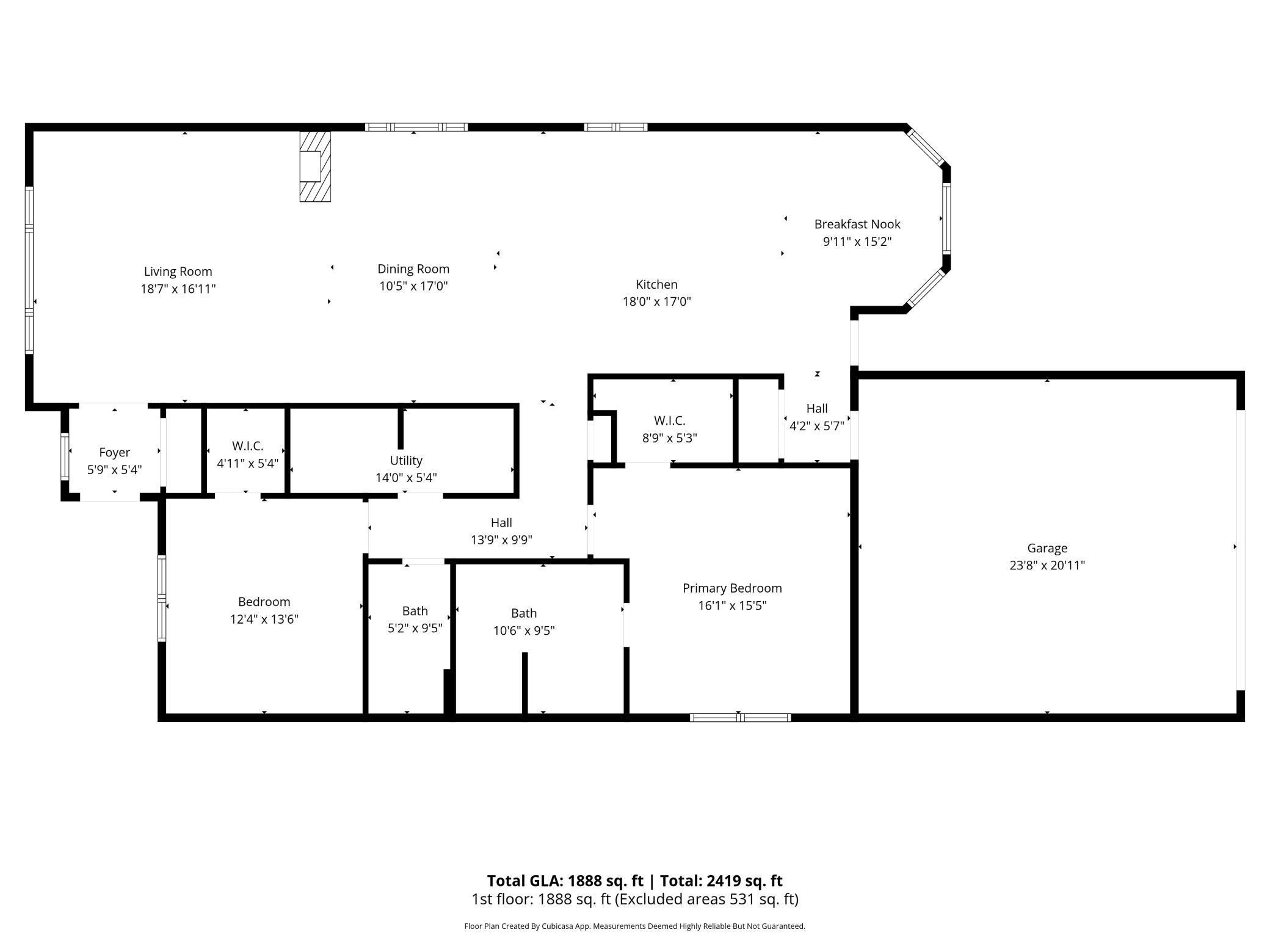
Welcome home to effortless one-level living in this slab-on-grade property with no association fees. Offering 1,888 finished square feet, this home features cleanliness, new flooring, fresh paint, new toilets, range, dishwasher, and more. Thoughtfully designed for accessibility, enjoy a no-stairs, wheelchair-friendly layout with lever door handles. The spacious primary suite includes a large walk-in closet and a bathroom with grab bars, roll-in shower, and roll-under sink. Vaulted ceilings and a two-sided gas fireplace create a warm, inviting atmosphere. The kitchen offers an eating counter, informal dining, and a formal dining area. A second bedroom and full bath provide flexibility for guests or a home office. Large windows bring in abundant natural light. Complete with an attached garage and low-maintenance patio living, this home blends comfort, style, and convenience.

Overview

Property Status
Coming Soon
Lot Size
8,712 Sq.Ft.
MLS ID
7058152
Property Type
Residential
Year Built
2005

Features & Amenities

Total Area
1,888 Sq.Ft.
Neighborhood
Cambridge
Stories
1
Garage Spaces
2.0
Water Source
City Water/Connected
Roof
Age Over 8 Years, Asphalt
Parking
Attached Garage, Concrete
Heat Type
Forced Air, Fireplace(s)
Air Conditioning
Central Air
Laundry Room
Electric Dryer Hookup, Gas Dryer Hookup, Main Level, Washer Hookup
Fireplace
Two Sided, Gas, Living Room
Appliances
Air-To-Air Exchanger, Cooktop, Dishwasher, Dryer, Gas Water Heater, Range, Refrigerator, Stainless Steel Appliances, Washer
Sewer
City Sewer/Connected
Disability Features
Doors 36, Fully Wheelchair, Grab Bars In Bathroom, Door Lever Handles, No Stairs External, No Stairs Internal, Roll-In Shower, Roll Under Accessibility
School District
Cambridge-Isanti
Sales Price
$327,000
Real Estate Tax
$4,462/yr

Downloads

573 Taft Loop S

Schedule a Tour

We would love to help you see this beautiful home! As a full-service brokerage, we can help you tour. Please submit an offer, and answer questions about the buying process.

Thank you

for your interest in 573 Taft Loop S, Cambridge, MN 55008

573 Taft Loop S
Navigate
Cambridge

Explore Cambridge

Located an hour from St. Cloud and the Twin Cities, it offers a variety of amazing amenities.

read more

Mortgage Calculator

Estimate your monthly mortgage payment, including the principal and interest, property taxes, and HOA. Adjust the values to generate a more accurate rate.
$0,000 Your Payment 20 15 65
$0,000 Your Payment

I'm Interested In

573 Taft Loop S

or
  • CallBrian Larson

    License #40029375

    (763) 291-8630
  • Current Listings

    Featured Properties

    • 31883 Lakeway Drive NE Pending

      $595,000

      31883 Lakeway Drive NE, Cambridge, MN 55008

      • 3 Beds
      • 3 Baths
      • 2,809 Sq.Ft.
    • 1155 Joy Circle SW For Sale

      $545,000

      1155 Joy Circle SW, Cambridge, MN 55008

      • 7,410 Sq.Ft.
    • 33584 Washington Street NE Pending

      $475,000

      33584 Washington Street NE, Cambridge, MN 55008

      • 6 Beds
      • 3 Baths
      • 3,361 Sq.Ft.
    • 2434 Fillmore Lane SE Pending

      $365,000

      2434 Fillmore Lane SE, Cambridge, MN 55008

      • 3 Beds
      • 2 Baths
      • 1,315 Sq.Ft.
    • 420 Village Court For Sale

      $340,000

      420 Village Court, Cambridge, MN 55008

      • 3 Beds
      • 3 Baths
      • 1,800 Sq.Ft.
    • 2155 6th Lane SE Unit: 202 For Sale

      $72,500

      2155 6th Lane SE Unit: 202, Cambridge, MN 55008

      • 2 Beds
      • 2 Baths
      • 1,239 Sq.Ft.
    • 2155 6th Lane SE Unit: 101 For Sale

      $70,000

      2155 6th Lane SE Unit: 101, Cambridge, MN 55008

      • 2 Beds
      • 2 Baths
      • 1,452 Sq.Ft.
    View All Properties

    Follow Us On Instagram