Leave a Message

Thank you for your message. We will be in touch with you shortly.

Explore Our Properties

Property Description

Tucked into a quiet neighborhood just minutes from downtown Cambridge, this beautiful acreage property offers the perfect blend of space, comfort, and convenience. Enjoy peaceful views of the pond and fruit trees that add charm and character to the setting, while still being close to the new Kwik Trip, the community college, and easy access to town.

Recent exterior updates add both value and peace of mind, including brand new roof and siding on the home and detached garage, new garage doors, and many new windows.

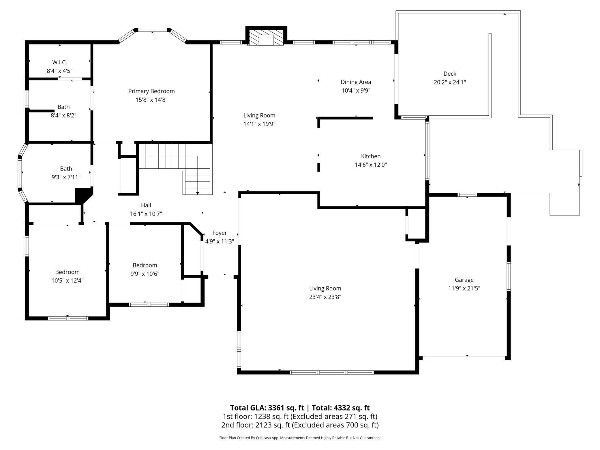
Inside, the home features spacious living areas including a graciously sized main-level great room; perfect for gathering and entertaining. The cozy living room is warm and inviting with a gas fireplace, creating the ideal spot to relax. The main level includes three bedrooms, highlighted by a primary suite with a private bathroom and a nicely sized walk-in closet.

Step outside to the deck where you'll enjoy beautiful sunset views and plenty of space for outdoor entertaining, surrounded by thoughtfully designed landscaping. Relax in the hot tub as you enjoy your peaceful surroundings.

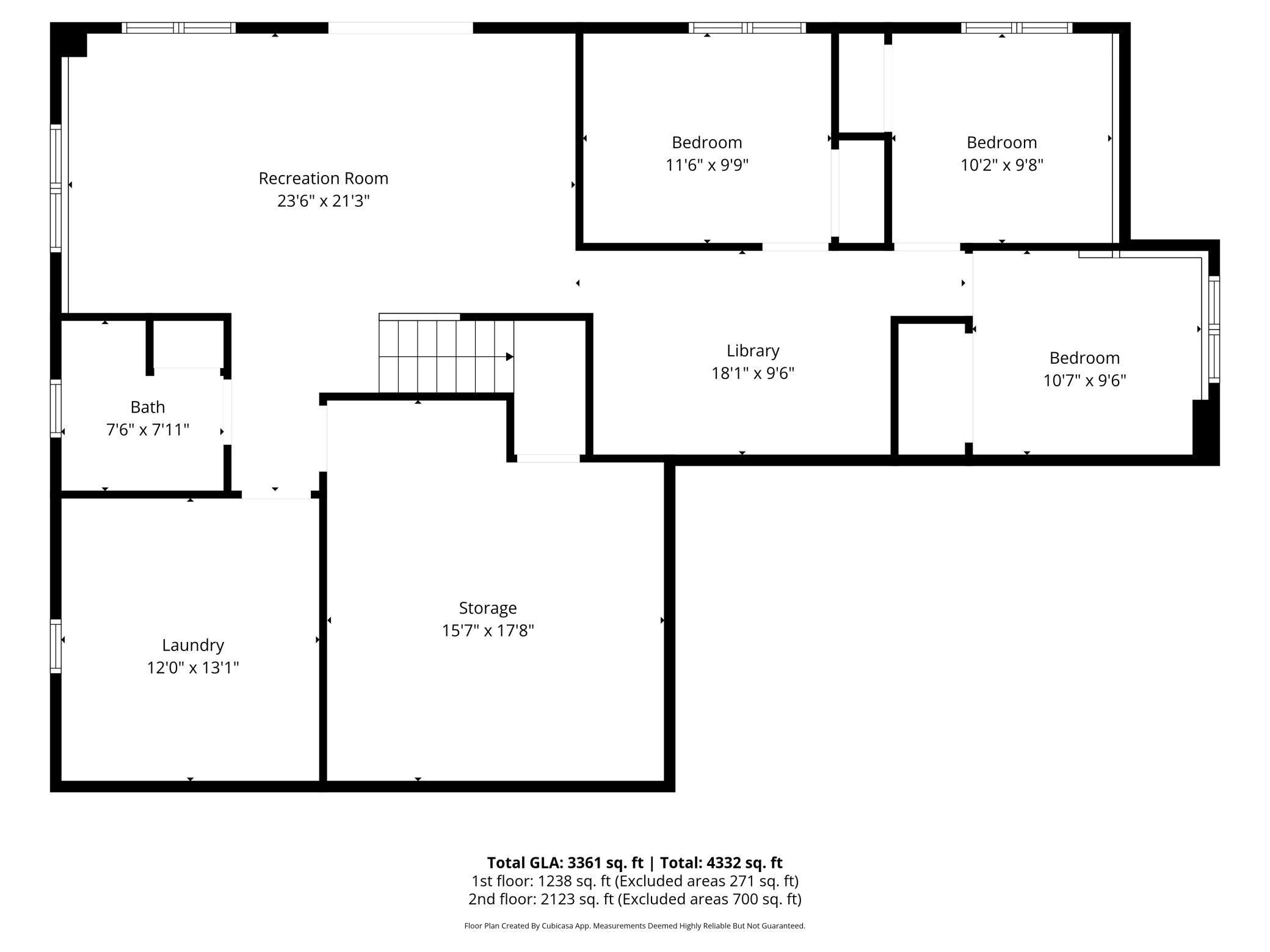
The walkout lower level provides additional living space with bedrooms, a comfortable family room, a library, and a large storage room; offering flexibility for hobbies, guests, or work-from-home options.

Complete with a one-stall attached garage and a two-stall detached garage, this property offers plenty of space for vehicles, storage, and projects while enjoying the peaceful setting of country living close to town. Welcome Home!

Overview

Property Status
Pending
Lot Size
1.06 Acres
MLS ID
7013271
Property Type
Residential
Year Built
1996

Features & Amenities

Total Area
3,825 Sq.Ft.
Neighborhood
Cambridge
Water Frontage
Pond
Stories
1
Garage Spaces
3.0
Water Source
Private
Roof
Age 8 Years or Less, Asphalt
Lot Features
Tree Coverage - Medium
Parking
Attached Garage, Detached Garage, Asphalt, Garage Door Opener, Storage
Heat Type
Forced Air
Air Conditioning
Central Air
Laundry Room
Lower Level, Laundry Room, Sink
Fireplace
Brick, Gas, Living Room
Appliances
Dishwasher, Dryer, Gas Water Heater, Microwave, Range, Refrigerator, Stainless Steel Appliances, Washer, Water Softener Owned
Sewer
Private Sewer
Disability Features
Wheelchair Ramp(s)
School District
Cambridge-Isanti
Sales Price
$475,000
Real Estate Tax
$3,450/yr

Downloads

33584 Washington Street NE

Schedule a Tour

We would love to help you see this beautiful home! As a full-service brokerage, we can help you tour. Please submit an offer, and answer questions about the buying process.

Thank you

for your interest in 33584 Washington Street NE, Cambridge, MN 55008

33584 Washington Street NE
Navigate
Cambridge

Explore Cambridge

Located an hour from St. Cloud and the Twin Cities, it offers a variety of amazing amenities.

read more
33584 Washington Street NE
explore in 3d

Mortgage Calculator

Estimate your monthly mortgage payment, including the principal and interest, property taxes, and HOA. Adjust the values to generate a more accurate rate.
$0,000 Your Payment 20 15 65
$0,000 Your Payment

I'm Interested In

33584 Washington Street NE

or
  • CallMichelle Lundeen

    License #20287659

    (763) 300-2728
  • Current Listings

    Featured Properties

    • 31883 Lakeway Drive NE Pending

      $595,000

      31883 Lakeway Drive NE, Cambridge, MN 55008

      • 3 Beds
      • 3 Baths
      • 2,809 Sq.Ft.
    • 1155 Joy Circle SW For Sale

      $545,000

      1155 Joy Circle SW, Cambridge, MN 55008

      • 7,410 Sq.Ft.
    • 2434 Fillmore Lane SE Pending

      $365,000

      2434 Fillmore Lane SE, Cambridge, MN 55008

      • 3 Beds
      • 2 Baths
      • 1,315 Sq.Ft.
    • 420 Village Court For Sale

      $340,000

      420 Village Court, Cambridge, MN 55008

      • 3 Beds
      • 3 Baths
      • 1,800 Sq.Ft.
    • 2155 6th Lane SE Unit: 202 For Sale

      $72,500

      2155 6th Lane SE Unit: 202, Cambridge, MN 55008

      • 2 Beds
      • 2 Baths
      • 1,239 Sq.Ft.
    • 2155 6th Lane SE Unit: 101 For Sale

      $70,000

      2155 6th Lane SE Unit: 101, Cambridge, MN 55008

      • 2 Beds
      • 2 Baths
      • 1,452 Sq.Ft.
    View All Properties

    Follow Us On Instagram