Leave a Message

Thank you for your message. We will be in touch with you shortly.

Explore Our Properties

Property Description

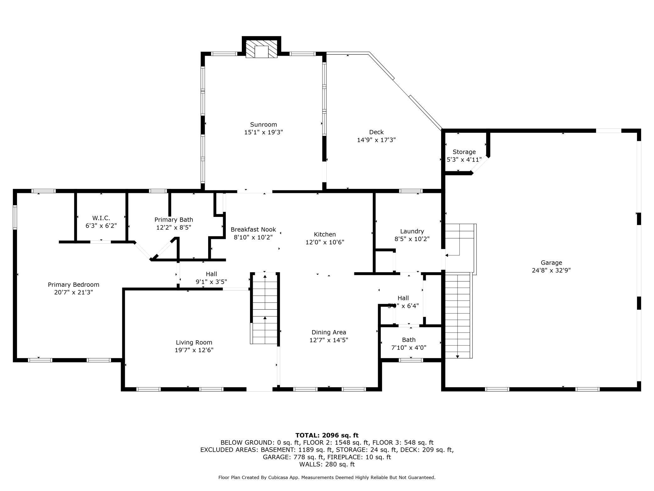
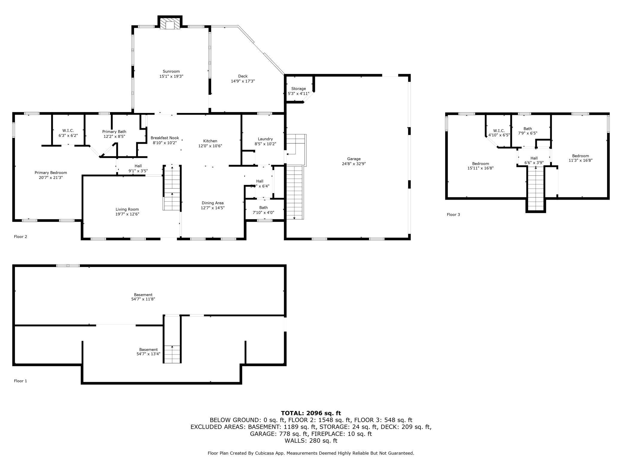
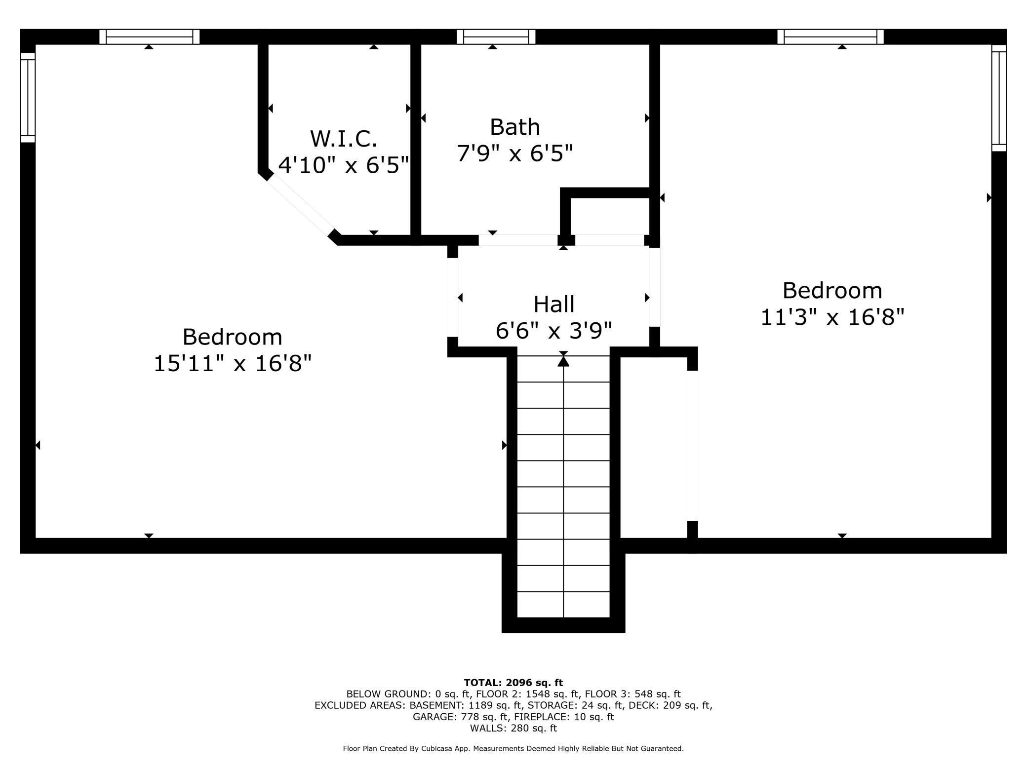
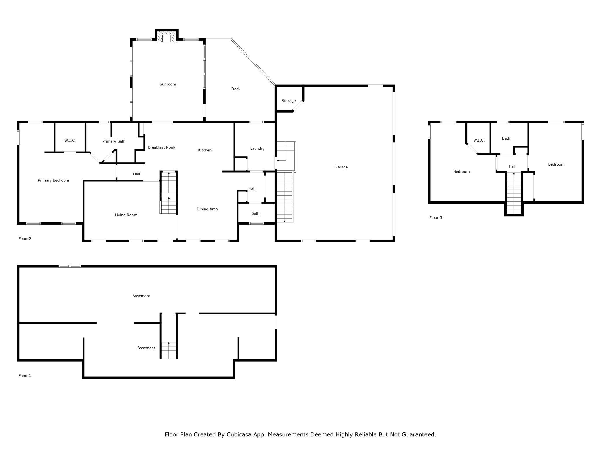
With over 36 acres and a tree lined winding paved driveway this private retreat is just minutes from Green Lake. The traditional front country porch greets you as you walk into this beautiful custom home. There is a front living room, a formal dining room, main floor laundry and a guest powder room that complement the main level living offered by this home; including a graciously sized primary bedroom suite with room for a desk, a large walk-in closet and a full private bath with a jetted tub and separate shower. One of the focal points of this property is the four season porch with numerous windows to watch all of the wildlife; including the birds, deer and turkey. Relax in front of the gas fireplace and feel surrounded by nature and woods both inside and out. The knotty pine ceiling and wood floors are aesthetically appealing and you can walk out onto the deck overlooking the yard as well. There are some trails through the property and three beautiful flowering crab trees in the front. There is a large pole shed that has a concrete floor, electricity and room for additional vehicles, storage or a hobby. Ten dog kennels with a fenced in airing yard with water out in the dog run offer a unique opportunity for the ambitious homeowner. The attached garage is insulated and fully finished with epoxy floors and a storage closet. The garage walks into the basement. This home has a newer roof that is only 3-4 years old, there are hardwood floors, white kitchen cabinets and a large center kitchen island. Beautiful main level spaces and two additional bedrooms in the upper level with a full bathroom. The lower level is unfinished and ready for your personal updates with a rough-in for a future bathroom. Enjoy living in the country and welcome home!

Overview

Property Status
Sold
Lot Size
36.12 Acres
MLS ID
6747357
Property Type
Residential
Year Built
1994

Features & Amenities

Total Area
3,636 Sq.Ft.
Stories
2
Garage Spaces
3.0
Water Source
Well
Roof
Age 8 Years or Less, Asphalt
Lot Features
Many Trees
Parking
Attached Garage, Asphalt, Finished Garage, Garage Door Opener, Insulated Garage, Storage
Heat Type
Forced Air, Fireplace(s)
Air Conditioning
Central Air
Fireplace
Gas, Other
Appliances
Dishwasher, Dryer, Electric Water Heater, Microwave, Range, Refrigerator, Stainless Steel Appliances, Washer, Water Softener Owned
Sewer
Mound Septic, Private Sewer
Disability Features
None
School District
Princeton
Sales Price
$615,000
Real Estate Tax
$5,030/yr

Downloads

7535 335th Avenue NW

Schedule a Tour

We would love to help you see this beautiful home! As a full-service brokerage, we can help you tour. Please submit an offer, and answer questions about the buying process.

Enter a valid email

Thank you

for your interest in 7535 335th Avenue NW, Princeton, MN 55371

back to page
7535 335th Avenue NW
Navigate
  • There are some trails through the property and three beautiful flowering crab trees in the front.

    Michelle Lundeen

I'm Interested In

7535 335th Avenue NW

or
  • CallMichelle Lundeen

    License #20287659

    (763) 300-2728
  • Follow Us On Instagram