Leave a Message

Thank you for your message. We will be in touch with you shortly.

Explore Our Properties

Property Description

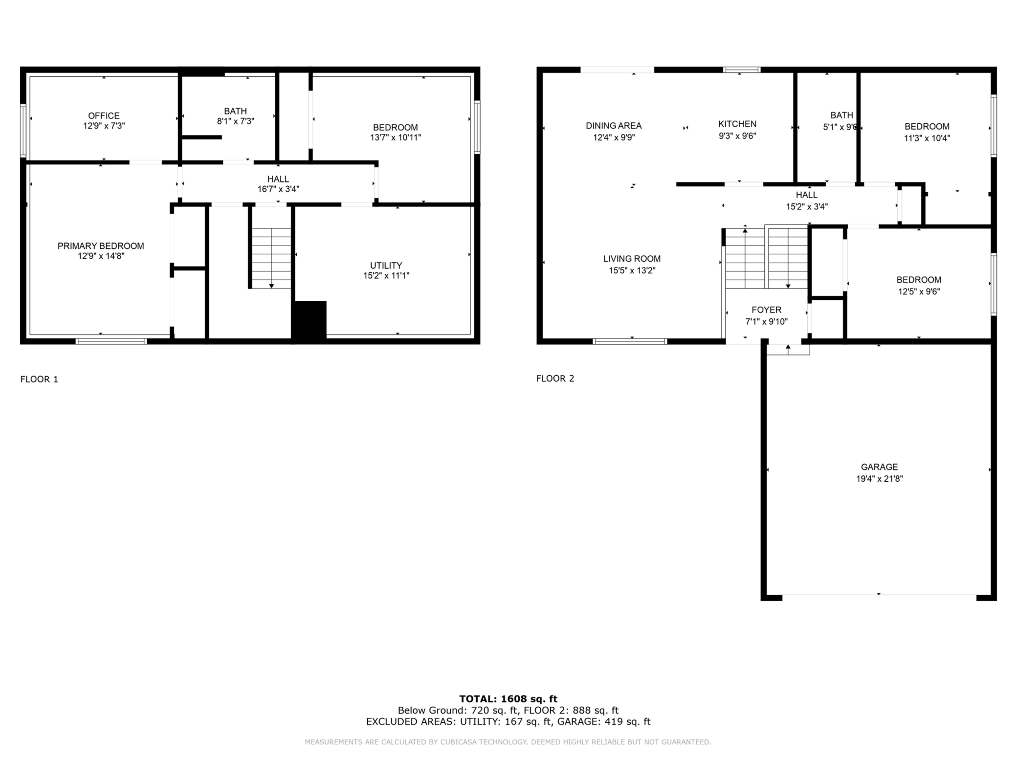
Fantastic 4 bedroom 2 bath home on a large 1.36 acre wooded corner lot. Relax out on the deck or throw a ball around in the spacious yard. This home is clean and well maintained with a full bath in the upper level & a full bath in the lower that includes a jetted tub. The fourth bedroom could be a family room and there is an office just off of it for those who may want to work from home. Laundry & utility room offers plenty of storage & the garage is insulated & sheetrocked. You will love the 28x44 detached heated garage with concrete floors, 200 amp service, multiple 220 volt outlets, 2x6 construction and 14' ceiling height. The air compressor and the hoist will be staying with the property as well. Great space for vehicles, an RV or to use as a shop. The backspace makes a wonderful workout room or could be a great hobby or woodworking area. Close to walking trails, local parks and not far from town. This property is ready to welcome you home!

Overview

Property Status
Sold
Lot Size
1.36 Acres
MLS ID
6498556
Property Type
Residential
Year Built
1999

Features & Amenities

Total Area
1,920 Sq.Ft.
Stories
2
Garage Spaces
5.0
Water Source
Private
Roof
Age Over 8 Years
Lot Features
Corner Lot, Many Trees
Parking
Attached Garage, Detached, Asphalt, Floor Drain, Garage Door Opener, Heated Garage, Insulated Garage, RV Access/Parking, Storage
Heat Type
Forced Air
Air Conditioning
Central Air
Appliances
Air-To-Air Exchanger, Dishwasher, Dryer, Gas Water Heater, Microwave, Range, Refrigerator, Washer
Sewer
Mound Septic, Private Sewer
Disability Features
None
School District
North Branch
Sales Price
$415,000
Real Estate Tax
$4,016/yr

Downloads

6726 403rd Street

Schedule a Tour

We would love to help you see this beautiful home! As a full-service brokerage, we can help you tour. Please submit an offer, and answer questions about the buying process.

Enter a valid email

Thank you

for your interest in 6726 403rd Street, North Branch, MN 55056

back to page
6726 403rd Street
Navigate

I'm Interested In

6726 403rd Street

or
  • CallMichelle Lundeen

    License #20287659

    (763) 300-2728
  • Follow Us On Instagram