Leave a Message

Thank you for your message. We will be in touch with you shortly.

Explore Our Properties

Property Description

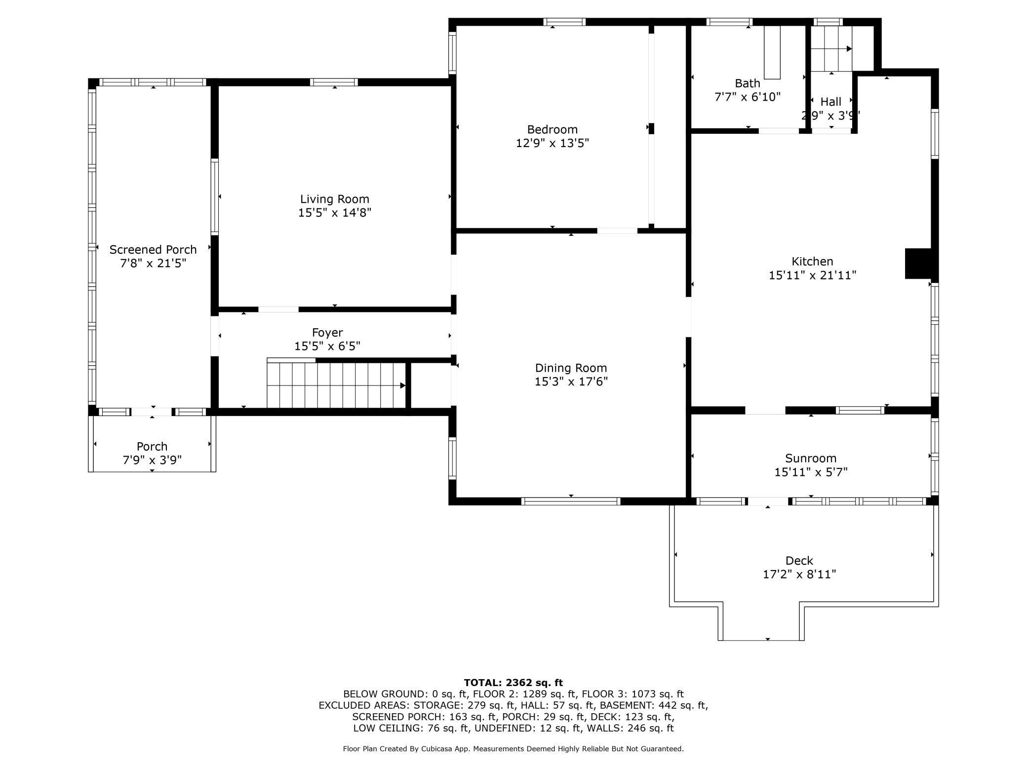
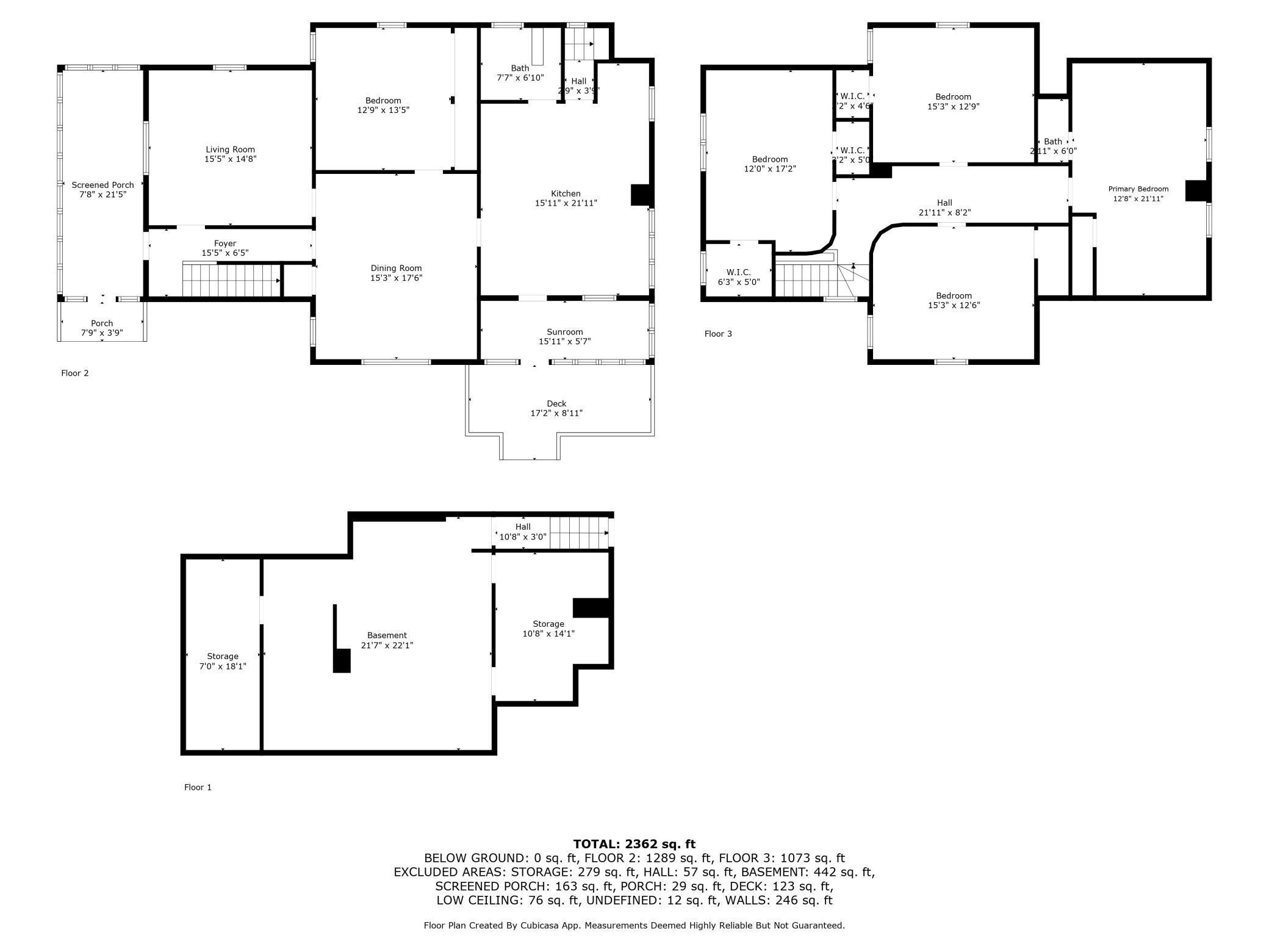
Welcome to your private 9 1/2 acres that is both wooded and that has pasture land. This property has so much potential; including being used as a hobby farm with back pastures, a fence for horses or other animals and with multiple outbuildings including a 70x42 pole shed, an 18x36 grainery, a 90x30 hay shed a 48x62 cattle shed and a 78x144 cattle concrete yard. There is a 60x40 indoor space that can be used as an indoor arena or utilize the buildings as an opportunity to make a little income by doing seasonal storage for pontoons, boats, vehicles, ect. Space for chickens and goats to free range and there are apple and pear trees to pick from. The septic system was brand new in 2022 and the turn of the century home has a deck, a patio and a front porch. Clean living spaces with a large farm kitchen, spacious dining room and high ceilings. Main floor bedroom and four upper level bedrooms offer plenty of sleeping space or office space. This property is ready for you to enjoy indoor and outdoor living and it is also close to Rush Lake; which is a lovely spot to enjoy recreational boating, swimming and fishing. Welcome home!

Overview

Property Status
Sold
Lot Size
9.55 Acres
MLS ID
6714498
Property Type
Residential
Year Built
1910

Features & Amenities

Total Area
3,142 Sq.Ft.
Stories
2
Garage Spaces
3.0
Water Source
Private, Well
Roof
Asphalt
Lot Features
Many Trees
Parking
Detached, Gravel, RV Access/Parking
Heat Type
Boiler, Hot Water, Radiator(s)
Air Conditioning
Window Unit(s)
Appliances
Dryer, Electric Water Heater, Microwave, Range, Refrigerator, Washer
Sewer
Mound Septic, Private Sewer, Septic System Compliant - Yes
Disability Features
None
School District
Rush City
Sales Price
$370,000
Real Estate Tax
$3,163/yr

Downloads

52905 Deerwood Avenue

Schedule a Tour

We would love to help you see this beautiful home! As a full-service brokerage, we can help you tour. Please submit an offer, and answer questions about the buying process.

Thank you

for your interest in 52905 Deerwood Avenue, Rush City, MN 55069

52905 Deerwood Avenue
Navigate
52905 Deerwood Avenue
explore in 3d

I'm Interested In

52905 Deerwood Avenue

or
  • CallMichelle Lundeen

    License #20287659

    (763) 300-2728
  • Follow Us On Instagram