Leave a Message

Thank you for your message. We will be in touch with you shortly.

Explore Our Properties

Property Description

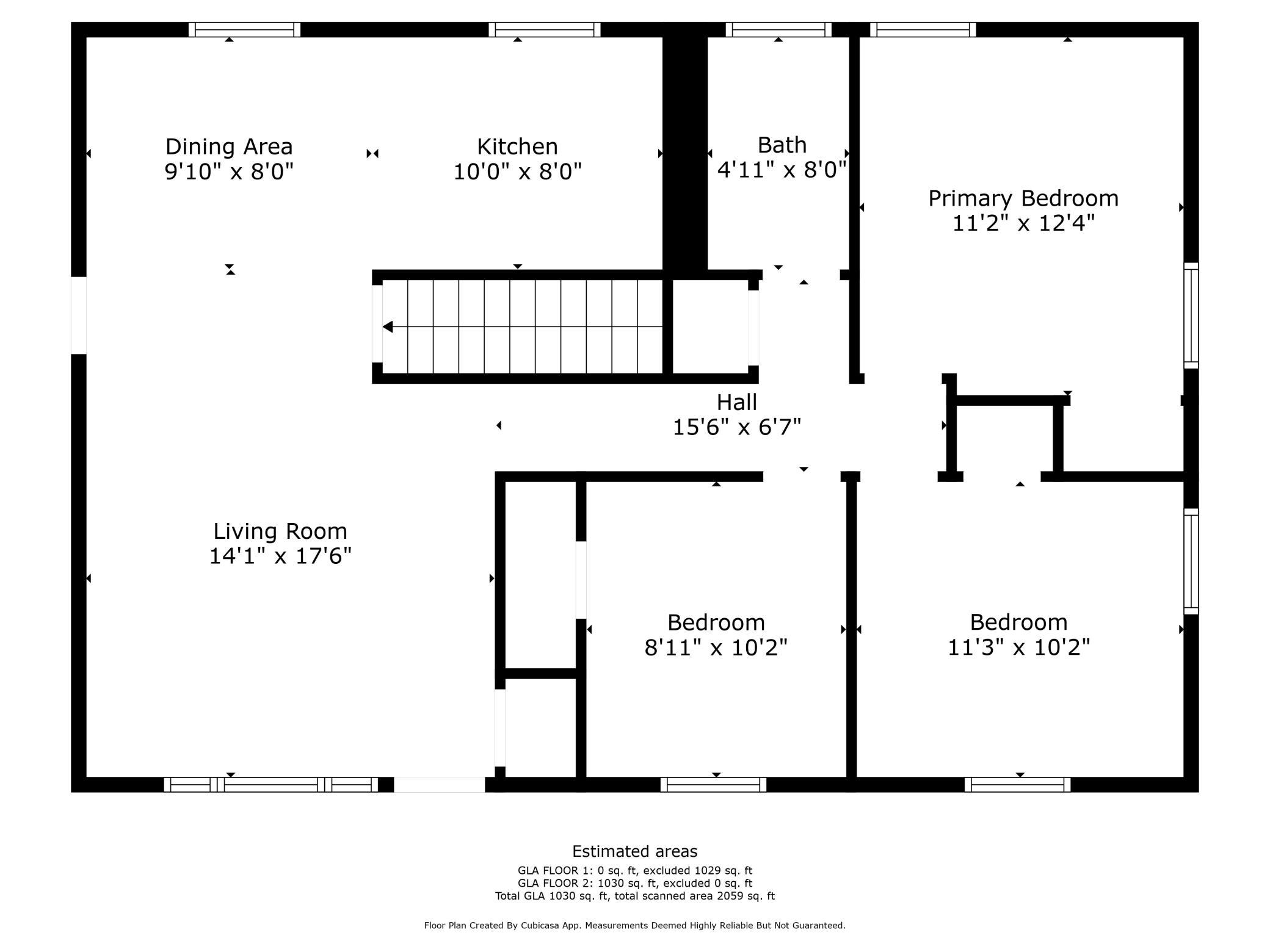
You will love this beautiful wooded 6.78 property. Located off a tarred road and not far from town; this rambler sits back from the road and offers lots of privacy. Updates include a new roof; which is only a year or two old, The furnace and AC; which are less than five years old, and a compliant septic that was new in 2018. Septic is sized for a four bedroom home allowing for an additional bedroom to be finished in the lower level. Basement "bathroom" is a working toilet and a sink, but is unfinished. The lower level is unfinished and waiting for the new buyer's personal touches. There are hardwood floors in the living room and the main level was all repainted within the last five years. Enjoy an oversized one stall garage with lots of storage including storage in the rafters. There are two sheds that will stay with the property; they are as-is. If you are looking for acreage...this home is for you. Welcome home!

Overview

Property Status
Sold
Lot Size
6.87 Acres
MLS ID
6596685
Property Type
Residential
Year Built
1973

Features & Amenities

Total Area
988 Sq.Ft.
Stories
1
Garage Spaces
1.0
Water Source
Well
Roof
Age 8 Years or Less, Architectural Shingle
Lot Features
Many Trees
Parking
Detached, Driveway - Other Surface, Garage Door Opener, Storage
Heat Type
Forced Air
Air Conditioning
Central Air
Appliances
Dishwasher, Dryer, Electric Water Heater, Range, Refrigerator, Washer, Water Softener Owned
Sewer
Private Sewer, Septic System Compliant - Yes, Tank with Drainage Field
Disability Features
Grab Bars In Bathroom, Soaking Tub
School District
Cambridge-Isanti
Sales Price
$310,000
Real Estate Tax
$2,926/yr

Downloads

510 319th Avenue NE

Schedule a Tour

We would love to help you see this beautiful home! As a full-service brokerage, we can help you tour. Please submit an offer, and answer questions about the buying process.

Thank you

for your interest in 510 319th Avenue NE, Cambridge, MN 55008

510 319th Avenue NE
Navigate
510 319th Avenue NE
explore in 3d

I'm Interested In

510 319th Avenue NE

or
  • CallMichelle Lundeen

    License #20287659

    (763) 300-2728
  • Follow Us On Instagram