Leave a Message

Thank you for your message. We will be in touch with you shortly.

Explore Our Properties

Property Description

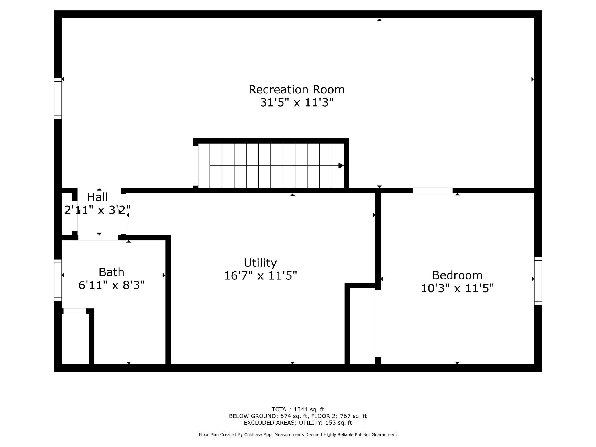
Welcome to this comfortable and cozy home located just on the edge of town. Isanti is a growing community that offers so much for everyone. There is a vibrant BMX community with a nationally acclaimed indoor BMX track, a hockey arena, a local amateur baseball team (The Red Birds), a large outdoor soccer complex, skate park and numerous parks; including Riverside Park (which is tucked back by the Rum River) and a local dog park. There is also a walking/biking trail between Isanti and Cambridge. Isanti offers great boutiques, grocery stores, coffee shops, yoga & exercise gyms and is also close to all of the amenities of Cambridge. You will love the community and the wooded lot here on Shawn St. This updated three bedroom home has a brand new washer & dryer. The modern galley kitchen has a beautiful backsplash, stainless steel appliances, granite countertops and beautiful cabinets. The main living areas in the home were recently painted as well as the lower level bedroom. Knock down ceilings, recessed lights, updated light fixtures & pretty millwork complete this well maintained home. The two stall garage is insulated and has plenty of parking and storage space. Welcome Home!

Overview

Property Status
Sold
Lot Size
0.39 Acres
MLS ID
6680764
Property Type
Residential
Year Built
1984

Features & Amenities

Total Area
1,390 Sq.Ft.
Stories
1
Garage Spaces
2.0
Water Source
City Water/Connected
Roof
Age Over 8 Years, Asphalt
Lot Features
Irregular Lot, Tree Coverage - Medium
Parking
Detached Garage, Concrete, Garage Door Opener, Insulated Garage
Heat Type
Forced Air
Air Conditioning
Central Air
Laundry Room
Lower Level, Sink
Appliances
Dishwasher, Disposal, Dryer, Gas Water Heater, Microwave, Range, Refrigerator, Stainless Steel Appliances, Washer, Water Softener Owned
Sewer
City Sewer/Connected
Disability Features
None
School District
Cambridge-Isanti
Sales Price
$300,000
Real Estate Tax
$2,854/yr

Downloads

401 Shawn Street SE

Schedule a Tour

We would love to help you see this beautiful home! As a full-service brokerage, we can help you tour. Please submit an offer, and answer questions about the buying process.

Thank you

for your interest in 401 Shawn Street SE, Isanti, MN 55040

401 Shawn Street SE
Navigate
401 Shawn Street SE
explore in 3d

I'm Interested In

401 Shawn Street SE

or
  • CallMichelle Lundeen

    License #20287659

    (763) 300-2728
  • Follow Us On Instagram