Leave a Message

Thank you for your message. We will be in touch with you shortly.

Explore Our Properties

Property Description

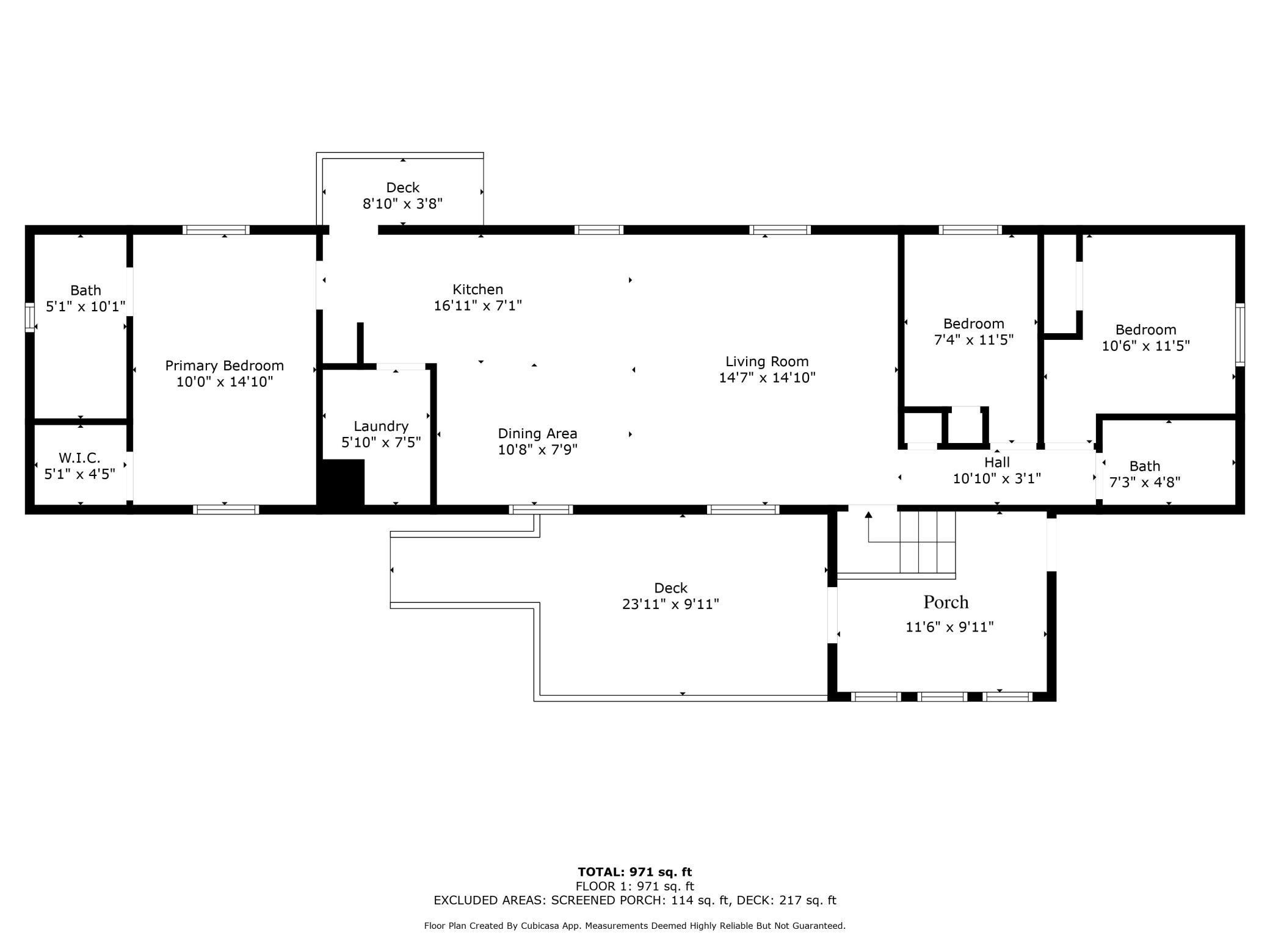
Three bedroom two bath well maintained manufactured home in the desirable 55+ Pine Village community. This is an established neighborhood that offers storm shelters, storage and a community center for parties & gatherings as well as some outdoor fire pit space. It is located just on the edge of Cambridge and is within minutes of Highway 65 and all of the amenities that the area has to offer. This home has a carport for two vehicles in the front, and a large 16x18 insulated and heated shed in the backyard; which was previously used for woodworking and makes a wonderful storage shed. It also has a front patio, a deck with a ramp and a front porch that works well as a mudroom. Enjoy plenty of natural light through this home with the numerous windows and the three skylights. The roof is only five years old. Open concept from the living room into the dining and kitchen. The kitchen boasts lots of cabinets and a pantry as well as a serving or coffee bar. Main level living with a laundry room and a primary bedroom suite that includes a 3/4 bath and a walk-in closet. The second bedroom is set up as a sewing room and has laminate flooring. Welcome home!

Overview

Property Status
Sold
MLS ID
6701666
Property Type
Residential
Year Built
1998

Features & Amenities

Stories
1
Water Source
Shared System
Roof
Age 8 Years or Less
Lot Features
Zero Lot Line
Parking
Carport
Heat Type
Forced Air
Air Conditioning
Central Air
Laundry Room
Laundry Room, Main Level
Appliances
Dishwasher, Dryer, Range, Refrigerator, Washer
Sewer
City Sewer/Connected
Disability Features
Grab Bars In Bathroom
School District
Cambridge-Isanti
Sales Price
$90,000
Real Estate Tax
$456/yr
HOA
$415/mo

Downloads

2205 Jack Pine Drive

Schedule a Tour

We would love to help you see this beautiful home! As a full-service brokerage, we can help you tour. Please submit an offer, and answer questions about the buying process.

Thank you

for your interest in 2205 Jack Pine Drive, Cambridge, MN 55008

2205 Jack Pine Drive
Navigate
2205 Jack Pine Drive
explore in 3d

I'm Interested In

2205 Jack Pine Drive

or
  • CallMichelle Lundeen

    License #20287659

    (763) 300-2728
  • Follow Us On Instagram