Leave a Message

Thank you for your message. We will be in touch with you shortly.

Explore Our Properties

Property Description

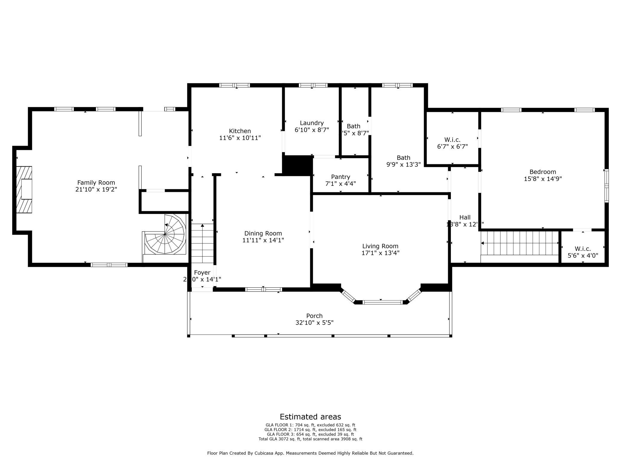
Escape to your private vacation oasis! This home features an 18'x36' inground pool, a slide, and diving board that is surrounded by a white privacy fence for ultimate relaxation. Meticulously cared for home by the same owner for the last 42 years! A charming front porch to enter the main level or the upper in-law suite with its own entrance, bedroom, 3/4 bath, living room, kitchen, laundry, and independent heating and cooling--perfect for guests or rental income. All living facilities are on the main level with beautiful oak woodwork, a kitchen with stainless steel appliances, a cozy den with vaulted ceilings and a stone fireplace. Two separate stairways to private lower-level bedrooms, the 1st with a bathroom and sauna. The 2nd bedroom is a cabin theme with a 3/4 bath, and a secret door to give more access to the lower level. This home is ideal for entertaining or quiet family time, nestled among mature trees intown Cambridge, close to trails, shops, and restaurants.

Overview

Property Status
Sold
Lot Size
0.31 Acres
MLS ID
6565128
Property Type
Residential
Year Built
1905

Features & Amenities

Total Area
3,908 Sq.Ft.
Stories
2
Garage Spaces
4.0
Water Source
City Water/Connected
Pool
Below Ground, Outdoor Pool
Roof
Age Over 8 Years
Lot Features
Corner Lot, Many Trees
Parking
Detached, Concrete, Electric, Garage Door Opener, Guest Parking
Heat Type
Forced Air, Fireplace(s), Space Heater
Air Conditioning
Central Air
Fireplace
Gas
Appliances
Disposal, Dryer, Microwave, Range, Refrigerator, Stainless Steel Appliances, Washer
Sewer
City Sewer/Connected
Disability Features
None
School District
Cambridge-Isanti
Sales Price
$450,000
Real Estate Tax
$4,874/yr

Downloads

214 6th Avenue SW

Schedule a Tour

We would love to help you see this beautiful home! As a full-service brokerage, we can help you tour. Please submit an offer, and answer questions about the buying process.

Enter a valid email

Thank you

for your interest in 214 6th Avenue SW, Cambridge, MN 55008

back to page
214 6th Avenue SW
Navigate
214 6th Avenue SW
explore in 3d

I'm Interested In

214 6th Avenue SW

or Contact

Follow Us On Instagram