Leave a Message

Thank you for your message. We will be in touch with you shortly.

Explore Our Properties

Property Description

Welcome to 1824 Nixon St. S., where comfort, style, and thoughtful design come together in a desirable Cambridge neighborhood. This beautifully maintained home offers an inviting open-concept floor plan that's ideal for both everyday living and entertaining. The main level features three spacious bedrooms, including a private primary suite with a walk-in closet and a private bath. The bright, open living area flows effortlessly into the kitchen and dining spaces, creating a warm and welcoming atmosphere. Convenient main-floor laundry adds ease to your daily routine.

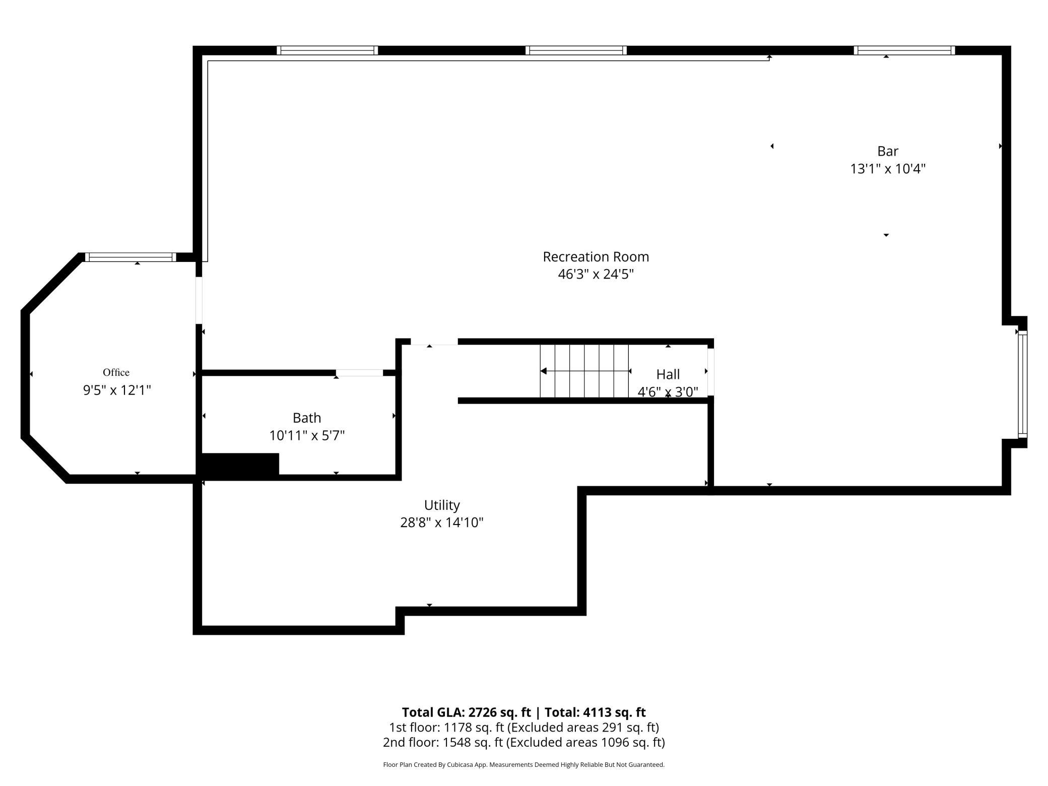
The finished lower level expands your living space with a stunning wet bar which was done with a technique called shou sugu ban, a Japanese wood preservation method. The bar also has a dishwasher and sink, perfect for hosting family and friends. All of the lights and theater are home automation compatible with Google, Alexa, etc. A versatile bonus room provides an excellent space for a home office, hobby area, craft room or a 4th bedroom.

Step outside to enjoy a fully fenced backyard designed for relaxation and fun, featuring a cozy fire pit and raised garden beds ready for your favorite flowers or vegetables. The insulated and heated 3 car garage provides year-round comfort, ample storage, and space for projects.

Located close to parks, schools, shopping, and restaurants, this exceptional home combines modern amenities with small-town charm. Experience the perfect balance of family-friendly living in this move-in ready Cambridge gem!

Overview

Property Status
For Sale
Lot Size
0.3 Acres
MLS ID
6815060
Property Type
Residential
Year Built
2006

Features & Amenities

Stories
1
Garage Spaces
3.0
Water Source
City Water/Connected
Pool
None
Roof
Age Over 8 Years, Asphalt, Pitched
Lot Features
Tree Coverage - Light
Parking
Attached Garage, Asphalt, Electric, Garage Door Opener, Heated Garage, Insulated Garage, Storage
Heat Type
Forced Air, Hot Water
Air Conditioning
Central Air
Laundry Room
Laundry Room, Main Level, Sink
Fireplace
Other
Appliances
Air-To-Air Exchanger, Dishwasher, Disposal, Dryer, Gas Water Heater, Microwave, Range, Refrigerator, Washer, Water Softener Owned
Sewer
City Sewer/Connected
Disability Features
None
School District
Cambridge-Isanti
Sales Price
$424,000
Real Estate Tax
$5,146/yr

Downloads

1824 Nixon Street S

Schedule a Tour

We would love to help you see this beautiful home! As a full-service brokerage, we can help you tour. Please submit an offer, and answer questions about the buying process.

Enter a valid email

Thank you

for your interest in 1824 Nixon Street S, Cambridge, MN 55008

back to page
1824 Nixon Street S
Navigate
1824 Nixon Street S
explore in 3d

Mortgage Calculator

Estimate your monthly mortgage payment, including the principal and interest, property taxes, and HOA. Adjust the values to generate a more accurate rate.
$0,000 Your Payment 20 15 65
$0,000 Your Payment

I'm Interested In

1824 Nixon Street S

or Contact

Follow Us On Instagram