Leave a Message

Thank you for your message. We will be in touch with you shortly.

Explore Our Properties

Property Description

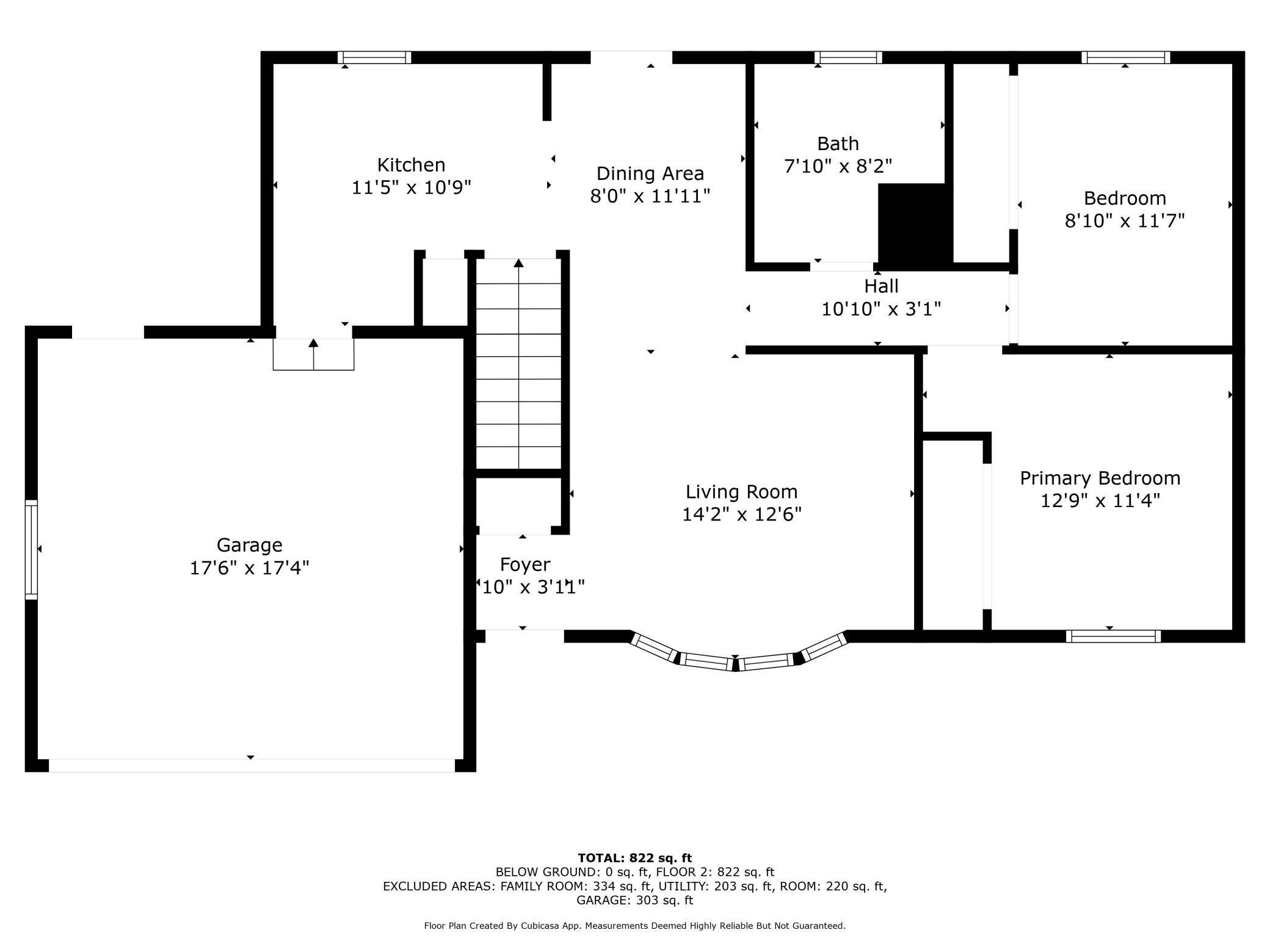
Well maintained rambler with two bedrooms and a full bathroom on the main level and the ability to add an additional bedroom in the lower level as well as a family room and bathroom for instant equity. This home is in an established neighborhood with a spacious fenced in backyard with a partial privacy fence and access to Peterson Park; which has a ball field and playground along with walking and biking paths. The bedrooms and bathroom have new flooring, there is fresh paint throughout the main level, nice smooth ceilings throughout the main level (except the main bedroom) and new light fixtures throughout. The lower level bathroom has a new toilet and the plumbing is there for a sink and for either a bathtub or a walk in shower. The kitchen has freshly painted cabinets and there is room for a dishwasher to be installed by the next owner if you choose to do so. Nice pantry space and plenty of storage inside the home, in the garage and in the storage shed. The garage is insulated and has a service door to the backyard. 150 amp outlet in the garage for welding. The Kayak rack in the backyard is staying. Lots of shade trees around the home and yard. Play in the backyard or the park or sit and relax around the fire pit. Welcome Home!

Overview

Property Status
Sold
Lot Size
9,583.2 Sq.Ft.
MLS ID
6605171
Property Type
Residential
Year Built
1992

Features & Amenities

Stories
1
Garage Spaces
2.0
Water Source
City Water/Connected
Lot Features
Tree Coverage - Heavy
Parking
Attached Garage, Asphalt, Garage Door Opener, Insulated Garage
Heat Type
Forced Air
Air Conditioning
None
Laundry Room
In Basement, Electric Dryer Hookup, Gas Dryer Hookup
Appliances
Dryer, Gas Water Heater, Range, Refrigerator, Washer
Sewer
City Sewer/Connected
Disability Features
None
School District
Cambridge-Isanti
Sales Price
$266,000
Real Estate Tax
$2,772/yr

Downloads

1320 Carriage Hills Drive S

Schedule a Tour

We would love to help you see this beautiful home! As a full-service brokerage, we can help you tour. Please submit an offer, and answer questions about the buying process.

Thank you

for your interest in 1320 Carriage Hills Drive S, Cambridge, MN 55008

1320 Carriage Hills Drive S
Navigate
1320 Carriage Hills Drive S
explore in 3d

I'm Interested In

1320 Carriage Hills Drive S

or
  • CallMichelle Lundeen

    License #20287659

    (763) 300-2728
  • Follow Us On Instagram